5-Zimmer-Wohnung mit Einliegerwohnung im Untergeschoss und großem Garten in Gottenheim

- Gottenheim
- Erdgeschosswohnung
- 136,11 m²
- 5 Zimmer
- 3 Schlafzimmer
- 2 Badezimmer
79288 Gottenheim
Die genaue Adresse teilen wir Ihnen auf Anfrage gerne mit.
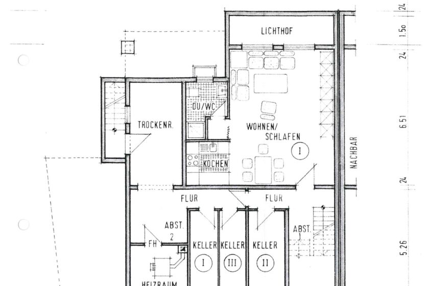
Diese optimal genutzte 5-Zimmer Wohnung überzeugt mit einem durchdachten Grundriss. Der zentrale Wohn- und Essbereich ist offengestaltet und verfügt über eine moderne Einbauküche, die sich harmonisch ins Raumkonzept einfügt. Das Tageslichtbad bietet sowohl eine Wanne als auch eine separate Dusche und ist, wie das Gäste-WC und eines der Zimmer mit Fliesen ausgestattet; alle anderen Wohnräume verfügen über einen Laminatboden.
Vom hellen Wohnzimmer aus gelangen Sie direkt auf den Balkon, von dem aus ein direkter Zugang zum großen, umzäunten, gepflegten Garten besteht – ideal zum Entspannen für Kinder oder gesellige Abende im Freien. Zur Wohnung gehören zwei Außenstellplätze sowie ein geräumiger Kellerraum und der obengenannte große Garten.
Zusätzlich gehört eine Einliegerwohnung im Untergeschoss, die über 1-Zimmer, Badezimmer, Küche und einen praktischen Abstellraum verfügt – ideal für Gäste, pflegebedürftige Angehörige oder eine zusätzliche Vermietungsmöglichkeit.
Diese Immobilie ist perfekt für Familien, die Raum und Flexibilität suchen und bietet durch die Einliegerwohnung vielfältige Nutzungsmöglichkeiten.
Sollten wir Ihr Interesse geweckt haben, rufen Sie uns heute noch an, um einen Besichtigungstermin zu vereinbaren.
Das Objekt liegt in einem ruhigen, familienfreundlichen Wohngebiet am Rand von Gottenheim, einer Weinbaugemeinde im Landkreis Breisgau-Hochschwarzwald.
Die Lage ist ideal für alle, die eine hervorragende Anbindung an Freiburg suchen – der S-Bahnhof Gottenheim ist in wenigen Minuten erreichbar und bietet regelmäßige Verbindungen direkt in die Stadt. Einkaufsmöglichkeiten, Bäckerei und Wochenmarkt finden sich im nahegelegenen Ortskern; Kita und Grundschule befinden sich ebenfalls in unmittelbarer Nähe.
Die Umgebung ist geprägt von gepflegten Ein- und Mehrfamilienhäusern, viel Grün und Naherholungsmöglichkeiten wie Spazier- und Radwege in den Weinbergen des Tunibergs. Die Straße, in der das Objekt liegt, ist sehr ruhig und verkehrsarm, perfekt für ein entspanntes Wohnen mit hoher Lebensqualität.
– Bad mit Wanne, Dusche und Fenster
– Gäste-WC
– Laminatboden
– Fliesen
– Gaszentralheizung (2020)
– Kellerraum
– Außenstellplätze
– großer Garten
Gerne stellen wir Ihnen das Objekt im Zuge einer Besichtigung vor.
Sämtliche Angaben zu diesem Objekt dienen einer ersten Information.
Das Exposé zu diesem Angebot und die darin gemachten Angaben in Wort, Bild und Werten stellen keine Beschaffenheitsvereinbarung dar.
Wert- und Maßangaben sind lediglich ca.-Werte.
IWS Wolfgang Schlimgen e.K. übernimmt keine Haftung für die vorliegenden Angaben.
Alle Angaben beruhen auf uns vorliegenden Informationen des Auftraggebers, nach bestem Wissen und Gewissen.
| Objekt ID: | 5669 |
| Verfügbar ab: | 01.11.2025 |
| Kaufpreis: | 535.000,00 EUR |
| Hauskosten: | 620,00 EUR |
| Befeuerung: | Gas |
| Zimmer: | 5 |
| Schlafzimmer: | 3 |
| Badezimmer: | 2 |
| Wohnfläche: | 136,11 m² |
| Nutzfläche: | 136,11 m² |
| Baujahr: | 1980 |
| Objektzustand: | gepflegt |
| Courtage: | 3,57% |
| Anzahl Außenstellplätze: | 2 |
| Stellplätze: | 2 |
| Separate WCs: | 1 |
| Balkone: | 1 |
| Heizungsart: | Zentralheizung |
| Befeuerungsart: | Gas |
| Wert des Endenergiebedarfs: | 161,00 kWh/(m²*a) |
| Art des Energieausweises: | Bedarf |
| Energieeffizienzklasse: | F |
- Gottenheim
- Erdgeschosswohnung
- 136,11 m²
- 5 Zimmer
- 3 Schlafzimmer
- 2 Badezimmer
79288 Gottenheim
Die genaue Adresse teilen wir Ihnen auf Anfrage gerne mit.








































